Pittsburgh International Airport
Hangar 5 Restroom and Locker Renovations

Findlay Township, PA

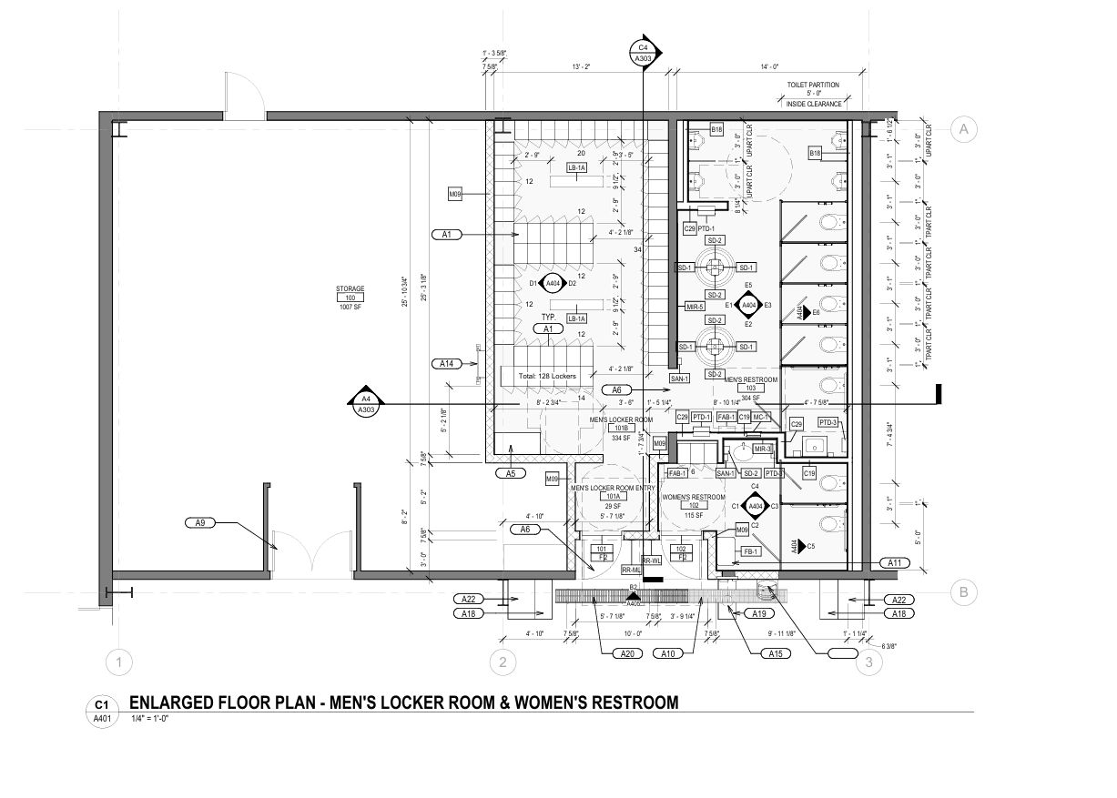
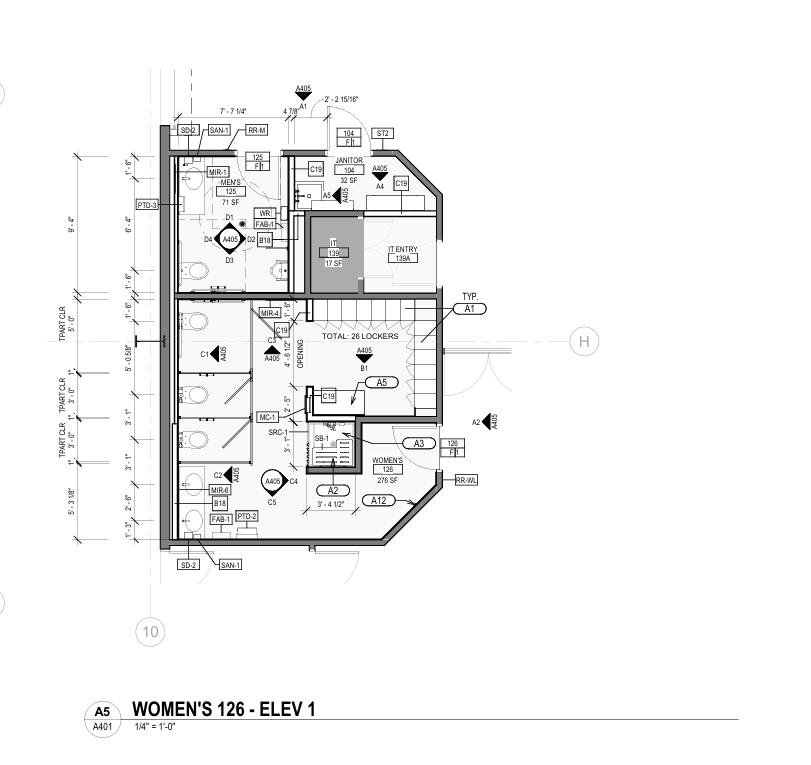
American Airlines selected Rios Williams Architects (RWA) to provide design services for the comprehensive renovation of locker rooms and restrooms serving Tech Operations staff at Pittsburgh International Airport’s Hangar 5. The project modernized three key locations with expanded locker counts, restrooms, updated fixtures and finishes, ADA-compliant layouts, and enhanced functionality, creating a cohesive, efficient, and comfortable environment for staff.

Previous
Previous

Pittsburgh International Airport

Next
Next

Other Notable Work